Niel
Aménagement d’un appartement haussmannien
Paris 17







Niel
Aménagement d’un appartement haussmannien
Paris 17
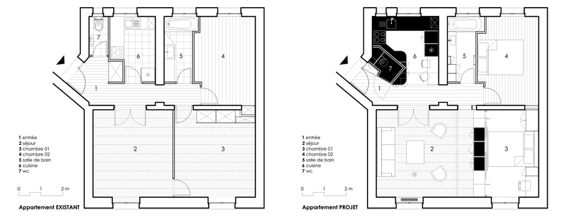
Pour cet appartement de 3 pièces familial situé avenue Niel, les maitres d’ouvrages avaient pour souhait d’augmenter les surfaces des espaces à vivre, en réduisant les chambres.
Les cloisons séparant l’entrée des WC et de la cuisine sont abattues, ainsi que la cloison entre le salon et la première chambre ; le projet privilégie un mobilier sur mesure pour le partage des pièces.
Face au salon, un meuble sculptural noir laqué, arrondi, vient redistribuer les espaces depuis l’entrée : il intègre les sanitaires dissimulés par une porte sous tenture, et se poursuit dans la cuisine, offrant de nombreux placards de rangements sur toute sa hauteur. Les espaces de distribution réduits dans l’entrée permettent de développer un linéaire de cuisine plus important. L’ouverture entre le couloir et le salon face à la cuisine est élargie, favorisant la perméabilité entre les pièces à vivre.
Pour donner plus de place au séjour, la chambre adjacente est réduite. Limitée en profondeur à la longueur du lit et de son chevet en tête de lit, elle est conçue comme une chambre-cabine agencée sur mesure, surélevée sur une estrade de 30 cm. Pour y accéder, deux marches de part et d’autre d’un grand meuble central, comprenant rangements et niches côté salon et deux grandes portes toute hauteur, pouvant coulisser intégralement. Ouvertes, elles permettent au salon de bénéficier de la lumière apportée par la fenêtre de la chambre, tout en donnant de la profondeur à la pièce.
En contraste avec le parquet point de Hongrie existant, les marches et le sol de la chambre sont revêtus d’une résine blanche mettant en valeur le chêne naturel de la tête de lit qui se prolonge en bureau avec étagères. Le meuble séparatif également en chêne, répond au meuble de l’entrée avec un socle et des niches laqués noirs.
Architecte | Nathan Rosilio
Collaborateur | Louise Maurice
Maître d’ouvrage | Privé
Localisation | Paris 75017
Surface | 75 m²
Photo | NR
