Mont-Blanc
Restructuration et extension d’un chalet
Chamonix










Mont-Blanc
Restructuration et extension d’un chalet
Chamonix
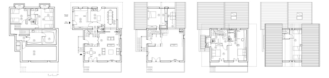
Face au Mont-Blanc, le chalet familial n’avait connu aucun changement depuis sa construction. Afin d’accueillir une famille agrandie, la propriétaire souhaitait le reconfigurer entièrement. L’objectif était d’en conserver l’esprit d’origine, en y aménageant des éléments de confort contemporains et en ajoutant une extension – la labellisation BBC permettant l’augmentation du COS sur la parcelle. Les murs, la structure et la toiture ont ainsi été conservés, et l’intérieur entièrement repensé.
Les différents planchers ont été déposés et remontés en demi niveaux, offrant la possibilité de créer 5 chambres ainsi qu’un dortoir sous combles. Pour répondre au label BBC, le chalet, entièrement ré-isolé, intègre une pompe à chaleur, un récupérateur d’eau de pluie, et des menuiseries double vitrage. L’extension a été conçue sur la partie Nord-Ouest du chalet, afin d’ouvrir les vues sur le terrain situé à l’arrière de la maison. De grandes baies bénéficiant d’une double hauteur apportent à la cuisine un maximum de lumière naturelle. La façade extérieure de l’extension a été dessinée en cohérence avec la bâtisse d’origine, afin de donner l’impression d’avoir toujours été là.
Architecte | Nathan Rosilio
Maître d’ouvrage | Privé
Localisation | Chamonix
Surface | 295 m² + extension
