Marceau
Extension d’une maison individuelle
Ivry






Marceau
Extension d’une maison individuelle
Ivry
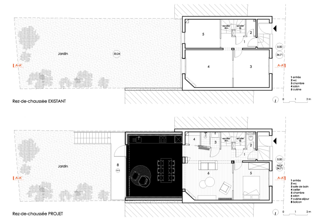
Cette maison individuelle de 2 niveaux de 60 m2 située à Ivry devait s’agrandir pour bénéficier d’une troisième chambre. A la surélévation des combles a été préférée l’extension des pièces à vivre, alors contraintes en petites pièces, permettant de transformer le salon en chambre parentale.
Le rez-de-chaussée, en surplomb de quelques marches depuis la rue, se retrouve au premier étage côté jardin, accessible uniquement depuis le sous-sol.
L’extension est construite sur la largeur de la parcelle, de même que la maison existante, dans le prolongement du rez-de-chaussée. Conçu comme un plug contre la façade arrière, suspendu au-dessus du jardin, ce volume simple de 30 m² s’ouvre largement sur l’extérieur.
Contraint en hauteur par les fenêtres de l’étage contre la maison existante, le volume de l’extension s’élève côté jardin, grâce à sa pente de toit inversée. La façade, en briques sombres côté jardinet, est quasi entièrement vitrée par une large baie surdimensionnée. Sur la droite, une porte donne accès à un balcon menant au jardin.
A l’intérieur, la nouvelle cuisine occupe la totalité d’un linéaire latéral de l’extension, laissant disponible le reste de la pièce ; le sol en béton clair accentue la luminosité de l’espace.
Le volume créé offre une vue cadrée sur l’arbre et la végétation du fond de parcelle.
Architecte | Nathan Rosilio
Collaborateur | Louise Maurice
Maître d’ouvrage | Privé
Localisation | Ivry
Surface 120+30 m²
Photo | NR
